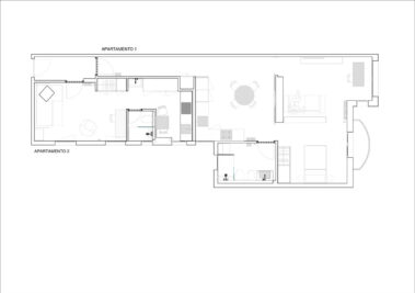
Reforma integral y segregación. División en un apartamento y un estudio. Espacios abiertos y luminosos. Puertas de gran formato y mobiliario a medida con acabados de chapa de roble y lacados. Los materiales elegidos para suelo son porcelánico para todo el suelo; paredes en contacto con zonas húmedas alicatadas con baldosas cerámicas de formato 5x20cm en vertical.

















